![]() | ![]() | ![]() | ![]() |
![]() | ![]() | ![]() | ![]() |
Protipožiarna klapka EI 90 S zabraňuje šíreniu ohňa a dymu vo vzduchotechnickom potrubí medzi jednotlivými požiarnymi úsekmi. Pri zvýšení teploty na 72 °C sa klapka automaticky uzavrie pomocou integrovanej tavnej poistky a pružinového mechanizmu. Vhodná je na montáž do stien, stropov, vzduchotechnických šácht alebo spiro potrubí.
automatické uzavretie pri teplote 72 °C,
zabraňuje šíreniu ohňa a dymu vo vzduchotechnike,
požiarna odolnosť EI 90 S (90 minút),
vhodná na montáž do stien, stropov a potrubí,
nízky tlakový odpor aj pri vyšších prietokoch vzduchu,
jednoduchá montáž pomocou montážneho rámika EH.
Protipožiarna klapka EI 90 S je bezpečnostný prvok určený pre vzduchotechnické systémy v obytných aj komerčných budovách. Používa sa v miestach, kde je potrebné zabrániť šíreniu požiaru alebo dymu cez ventilačné potrubia medzi jednotlivými požiarnymi úsekmi budovy.
Klapka sa montuje priamo do vzduchotechnických potrubí, stien alebo stropov, ktoré tvoria požiarne deliace konštrukcie. Pri bežnej prevádzke umožňuje voľný prietok vzduchu. V prípade požiaru sa pri prekročení teploty 72 °C aktivuje integrovaná tavná poistka, ktorá uvoľní pružinový mechanizmus. Polkruhové klapky sa okamžite uzavrú a bezpečnostné zámky ich zaistia v uzavretej polohe. Tým sa účinne zabráni šíreniu ohňa a dymu do ďalších častí budovy.
Klapka spĺňa požiadavky európskej legislatívy pre stavebné výrobky a je testovaná podľa normy EN 1366-2. Požiarna klasifikácia podľa EN 13501-3: EI 90 S – 300 Pa zabezpečuje uzatvorenie a izoláciu priestoru až po dobu 90 minút, a to vo vertikálnej aj horizontálnej polohe. je v súlade s európskou normou DIN EN 15650. Má certifikát EÚ o stálosti výkonu 0749-CRP-BC1-606-0464-15650,69-2517.
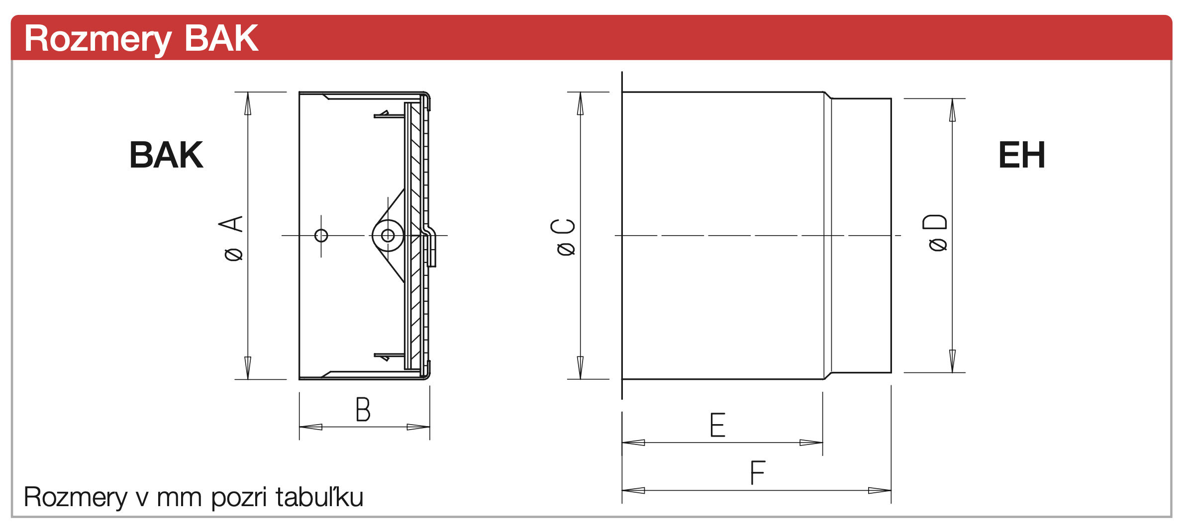
Klapka je tvorená kruhovou vložkou s dvojkrídlovou klapkou a integrovanou tavnou poistkou. Konštrukcia umožňuje montáž priamo do spiro potrubia alebo do stavebných konštrukcií pomocou montážneho rámika EH (príslšenstvo). Zabezpečuje nízky tlakový odpor a tichú prevádzku.
Klapka umožňuje prúdenie vzduchu v oboch smeroch, takže je vhodná pre systémy prívodu aj odvodu vzduchu.
Protipožiarnu klapku EI 90 S je možné montovať priamo do spiro potrubia, do stien alebo stropov pomocou montážneho rámika EH, alebo do vzduchotechnických šácht. Montáž je možná z oboch strán a nie je závislá od smeru prúdenia vzduchu.
Klapka sa jednoducho zasunie do potrubia alebo montážneho rámika a upevní do stavebnej konštrukcie. Pri montáži je potrebné dodržiavať príslušné normy a montážne pokyny výrobcu.


